北区・北大路
小山板倉町貸家
- 京都市営地下鉄烏丸線 - 北大路 - 歩3分
- 京都市営地下鉄烏丸線 - 鞍馬口 - 歩15分
- 京都市営地下鉄烏丸線 - 北山 - 歩16分
京都市北区小山板倉町(お問い合わせ番号:006136)
- 住所
- 京都市北区小山板倉町
- 築年月
- 平成5年06月
- 構造
- 木造
- 階数
- 2階建
- 所在階
- 2階部分
- 開口
- 南向
- 契約期間
- 10年
- 間取り詳細
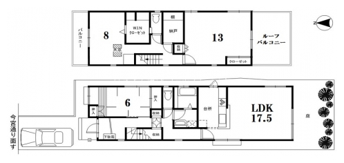
- 6和室 8洋室 13洋室 17.5LDK
京都市北区、北大路イオンのほぼ隣に専有122平米、3LDK戸建賃貸募集! ガレージ1台付! ペット飼育相談出来ます! 駅まで徒歩3分は超希少! 10年定期賃貸借! なんと言ってもこの立地です!
- 間取り
- 3LDK 専有面積/122.63㎡
- 賃料
- 200,000円 共益費または管理費/賃料に含
ガレージ代/賃料に含む
- 敷金/1ヶ月
- 礼金/1ヶ月
- 更新料/「ナシ」
小山板倉町貸家
北区・北大路
- 住所
- 京都市北区小山板倉町
- 築年月
- 平成5年06月
- 構造
- 木造
- 階数
- 2階建
- 所在階
- 2階部分
- 開口
- 南向
- 契約期間
- 10年
- 間取り詳細
- 6和室 8洋室 13洋室 17.5LDK
- エアコン
- オートロック
- フローリング
- バルコニー
- システムキッチン
- カウンターキッチン
- ウォシュレット
- 角部屋
- 最上階
- 南向
- 追い焚き
- 浴室乾燥機
- ウォークインクローゼット
- TVモニターホン
- 宅配ボックス
- 床暖房
- 食器洗乾燥機
- 専用庭
- BSアンテナ
- ルーフバルコニー
- オール電化
- エレベーター
- ガスコンロ
- IHコンロ
- デザイナーズ
- 浴室TV
- ミストサウナ
- シャンプーD
- ピアノ可(楽器可)
- ペット相談
- 事務所可








